top of page
___.jpg)
POZNAŃ
INTERIOR-S
PU: 45m2
ROK: 2021
ETAP: realizacja
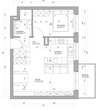
Mieszkanie prywatne w Poznaniu
Po wejściu do mieszkania przechodzimy wzdłuż zabudowy z lustrzanymi frontami, w której wydzielono miejsce na akwarium.
Słupek zabudowy kuchennej oddziela strefę kuchni i salonu. Dzięki temu na niedużej powierzchni uzyskaliśmy kilka stref i jednocześnie zachowaliśmy wrażenie przestrzeni.
W mieszkaniu przeważają stonowane kolory, przełamane ciepłą barwą drewna. Wszystko zostało zaprojektowane i wykonane ze szczególną dbałością o detale.
___.jpg)
bottom of page








